75003 Le Marais – Duplex rare et exceptionnel

  • 6 pièces
  • 3 chambres
  • 2 salles de bains
  • 156.23 m²

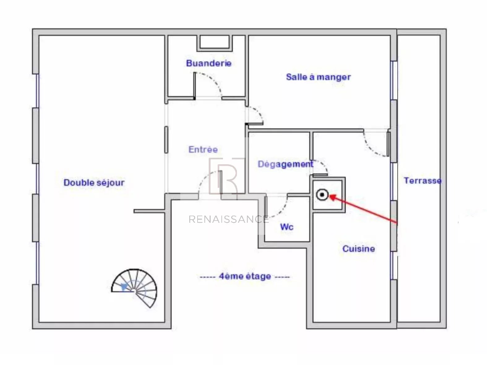
Rare 75003 Paris Le Marais nous vous proposons cet appartement en Duplex d'une surface de 156.23m2 loi Carrez, situé au 4ème étage avec ascenseur et bénéficiant de deux grands balcons et un PARKING.
Deux grand balcons : 9.92m2 et 12m2

Il se compose d’une entrée spacieuse desservant un vaste salon lumineux d’environ 50 m², une cuisine séparée avec accès direct au balcon-terrasse, une salle à manger, un dégagement ainsi qu’un WC.

Au 5ème étage, vous trouverez un bureau, deux chambres, une salle d’eau et wc ainsi qu’une suite parentale avec sa salle d’eau.

Un parking et une cave complètent ce bien.

Lire la suite

Général

  • Référence 86805046
  • Pièces 6 pièces
  • Surface 156.23 m²
  • Surface totale 156.23 m²
  • Type de chauffage Central
  • Énergie de chauffage Eau chaude
  • Moyen de chauffage Collectif
  • Moyen d'eau chaude Collective
  • État Excellent état
  • Étage 4ème étage / 5
  • Exposition Est
  • Vue Dégagée

Localisation

Surfaces

  • 1 Salon 35 m²
  • 1 Séjour 14 m²
  • 1 Entrée 8 m²
  • 1 Cuisine 12 m²
  • 1 Chambre de maître 19 m²
  • 1 Chambre 18 m²
  • 1 Chambre 8 m²
  • 1 Bureau 5 m²
  • 1 Buanderie 5 m²
  • 1 Salle de bains 7 m²
  • 1 Salle de bains / toilettes 7 m²
  • 1 Balcon 10 m²
  • 1 Balcon 12 m²
  • 1 Dégagement 4 m²
  • 1 Toilettes 2 m²
  • 1 Palier 12 m²
  • 1 Escalier 3 m²
  • 1 Salon 2 m²
  • 1 Parking intérieur

Services

  • Double vitrage
  • Ascenseur
  • Digicode
  • Gardien
  • Interphone
  • Fenêtre PVC

Proximités

Pas d'informations disponibles

Efficacité énergétique

Diagnostic de performance énergétique : E

Émission de gaz à effet de serre : E

Diagnostic Graph
Diagnostic Graph

Financier

  • Honoraires à la charge du vendeur
  • Charges 9504 € / an

Règlementation

  • Montant estimé des dépenses annuelles d'énergie pour un usage standard, établi à partir des prix de l'énergie de l'année 2021 : 3500€ ~ 4750€

Médias

Pas d'informations disponibles

Galerie

Vente Appartement Paris 3ème Sainte-Avoye
Vente Appartement Paris 3ème Sainte-Avoye
Vente Appartement Paris 3ème Sainte-Avoye
Vente Appartement Paris 3ème Sainte-Avoye
Vente Appartement Paris 3ème Sainte-Avoye
Vente Appartement Paris 3ème Sainte-Avoye
Vente Appartement Paris 3ème Sainte-Avoye
Vente Appartement Paris 3ème Sainte-Avoye
Vente Appartement Paris 3ème Sainte-Avoye
Vente Appartement Paris 3ème Sainte-Avoye
Vente Appartement Paris 3ème Sainte-Avoye
Vente Appartement Paris 3ème Sainte-Avoye
Vente Appartement Paris 3ème Sainte-Avoye
Vente Appartement Paris 3ème Sainte-Avoye
Vente Appartement Paris 3ème Sainte-Avoye
Vente Appartement Paris 3ème Sainte-Avoye

Propriétés similaires

Découvrez des propriétés qui ne manqueront pas de vous intéresser.

Ce site est protégé par reCAPTCHA et les règles de confidentialité et les conditions d'utilisation de Google s'appliquent.